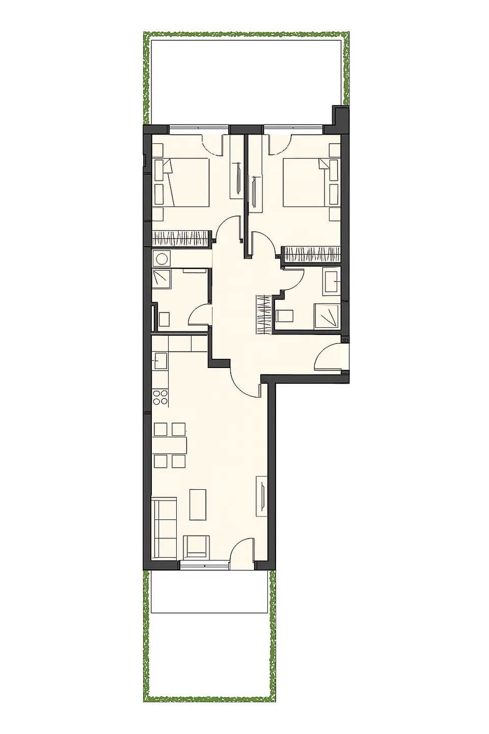
Идентификатор на имота: 1187
| Вид на имота | Тристаен апартамент | Площ | 147.13 |
|---|---|---|---|
| Етаж | 1 | Степен на завършеност | В строеж |
| Брой спални | 2 | Брой бани | 2 |
| Година на започване | 2025 | Година на завършване | 2027 |
Представяме ви тристаен апартамент с личен двор в нова, модерна жилищна сграда в спокойната и престижна част на кв. Сарафово, Бургас. Сградата се отличава с тиха морска атмосфера, просторни жилища и бърз достъп до плажа и основната инфраструктура на града.
Предимства на апартамента:
Тристайно разпределение с личен двор – идеален за семеен комфорт и отдих
Съвременно строителство с висококачествени материали и енергийна ефективност
Контролиран достъп и асансьори във всеки вход
Подземни гаражи и открити паркоместа за удобство на живущите
Отлична локация с бърз достъп до центъра на Бургас, летището и плажната ивица
Този апартамент предлага спокоен, сигурен и комфортен начин на живот в близост до морето, подходящо както за постоянно живеене, така и за ваканционен имот или инвестиция.
Гъвкави финансови условия улесняват процеса на закупуване и го правят максимално удобен за вас.
Открийте начин на живот с комфорт и удобство, с внимателно проектирани удобства, които отговарят на всичките ви нужди.
Възможност за покупка на паркомясто и гараж
Климатик
Да
Домофонна система
А
Собствен двор
В района
В района
Оптична връзка
PVC – четири сезона
Мокро помещение
Намерете перфектния дом с нашите атрактивни оферти за недвижими имоти. Специално подбрани, за да отговарят на всички ваши нужди и желания.
Популярни Имоти
Бургас, ж.к.Меден Рудник
Двустаен апартамент 64.52 1 1 1 2026
Созопол, Буджака
Тристаен апартамент 141.41 3 2 1 2026
Бургас, Бургас, Хоризонт,
Двустаен апартамент 63,16 5 1 1 2027
Бургас, Бургас, Хоризонт,
Тристаен апартамент 93,39 6 2 1 2027
Бургас, Бургас, Крайморие, Крайморие
Двустаен апартамент 71.35 Партер 1 1 2026
Бургас, Хоризонт
Двустаен апартамент 70.77 2 1 1 2027
Бургас, Сарафово
Двустаен апартамент 63.68 1 1 1 2025
Поморие,
Двустаен апартамент 82.44 3 1 1 2026
Получавайте актуална информация за последните предложения и инвестиционни възможности в сектор на недвижимите имоти.