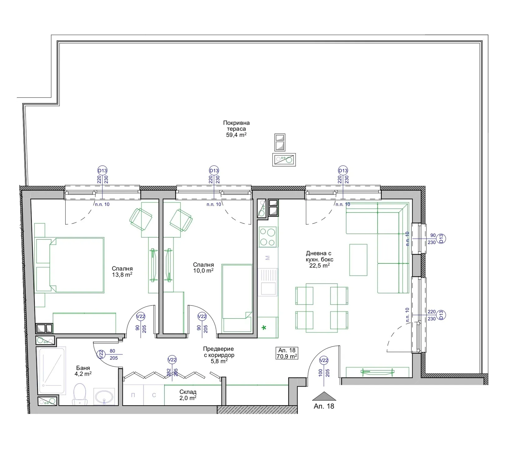
Поморие модерн Ап.18 Тристаен апартамент

Идентификатор на имота: 1186

€129 795

Детайли за имота

 Вид на имота Тристаен апартамент  Площ 144.22
 Етаж 5  Степен на завършеност В проект
 Брой спални 2  Брой бани 1
 Година на завършване 2027

За имота

Представяме ви нов, модерен жилищен проект в едно от най-желаните крайморски градчета на България – гр. Поморие. Сградата се намира на ул. Тутхон, в спокоен и добре развит район, с лесен достъп до центъра на града, плажната ивица, лечебните кални бани, медицински центрове, спортни съоръжения и разнообразни магазини.

Проектът е създаден с мисъл за комфорт и качество.
Жилищната сграда е проектирана по високи стандарти, с модерна архитектура и внимание към всеки детайл. Висококачествените материали и функционалното разпределение на апартаментите гарантират комфорт и удобство за бъдещите собственици.

Основни характеристики:

Локация на тиха улица, с бърз достъп до центъра и морския бряг

Модерна архитектура с енергоефективни решения

Асансьор и луксозни общи части с контролиран достъп

Паркоместа и гаражи на партерно ниво

Близост до лечебните кални бани и медицински центрове

Гъвкави схеми за плащане до края на строителните дейности


Градът е известен с лечебната си кал, приятния климат и уютната атмосфера. Тук се съчетават спокойствие, природна красота и удобства на градски живот, което го прави идеално място както за постоянно живеене, така и за ваканционен имот или инвестиция.

Този проект предлага не просто жилище, а възможност за комфортен живот до морето и стабилна инвестиция за бъдещето.

Изключителни удобства за съвременен живот
Удобства

Открийте начин на живот с комфорт и удобство, с внимателно проектирани удобства, които отговарят на всичките ви нужди.

Паркиране

Възможност за покупка на паркомясто и гараж

Климатизация

Климатик

Асансьор

Да

Контрол на достъпа

Домофонна система

Енергиен клас

А

Зелена зона

Озеленена зона към сградата

Детска площадка

В района

Фитнес

В района

Интернет свързаност

Оптична връзка

Дограма

PVC – четири сезона

Помощни помещения

Склад

Структура на имота

Намерете перфектния дом с нашите атрактивни оферти за недвижими имоти. Специално подбрани, за да отговарят на всички ваши нужди и желания.

Удобства на района

Намерете перфектния дом с нашите атрактивни оферти за недвижими имоти. Специално подбрани, за да отговарят на всички ваши нужди и желания.

Популярни Имоти

Избрани

Абонирай се!

Получавайте актуална информация за последните предложения и инвестиционни възможности в сектор на недвижимите имоти.

Абонирайте се