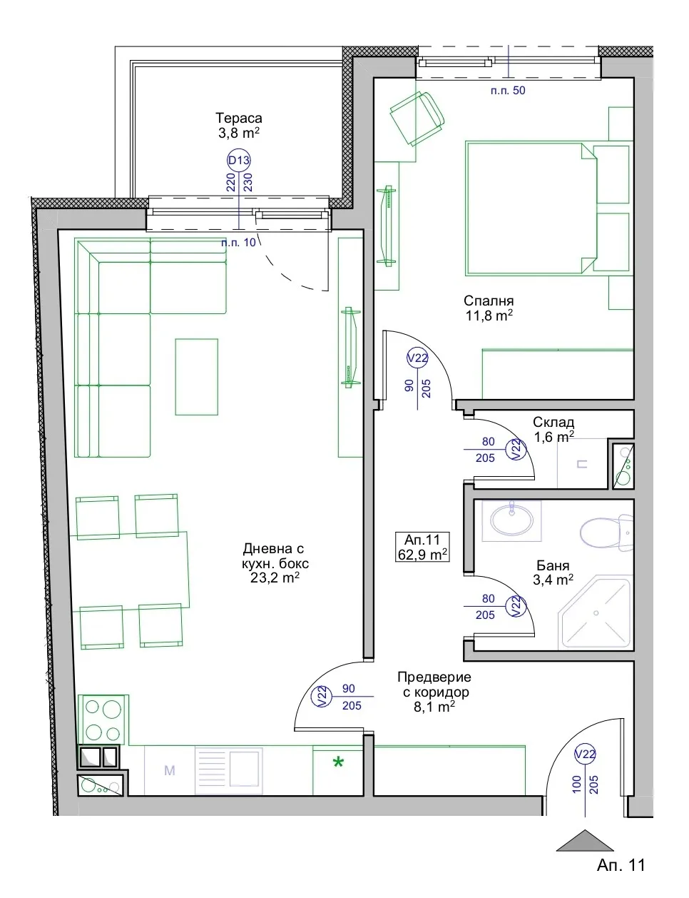
Идентификатор на имота: 1179
| Вид на имота | Двустаен апартамент | Площ | 68.94 |
|---|---|---|---|
| Етаж | 3 | Степен на завършеност | В проект |
| Брой спални | 1 | Брой бани | 1 |
| Година на завършване | 2027 |
Представяме ви нов, модерен жилищен проект в едно от най-желаните крайморски градчета на България – гр. Поморие. Сградата се намира на ул. Тутхон, в спокоен и добре развит район, с лесен достъп до центъра на града, плажната ивица, лечебните кални бани, медицински центрове, спортни съоръжения и разнообразни магазини.
Проектът е създаден с мисъл за комфорт и качество.
Жилищната сграда е проектирана по високи стандарти, с модерна архитектура и внимание към всеки детайл. Висококачествените материали и функционалното разпределение на апартаментите гарантират комфорт и удобство за бъдещите собственици.
Основни характеристики:
Локация на тиха улица, с бърз достъп до центъра и морския бряг
Модерна архитектура с енергоефективни решения
Асансьор и луксозни общи части с контролиран достъп
Паркоместа и гаражи на партерно ниво
Близост до лечебните кални бани и медицински центрове
Гъвкави схеми за плащане до края на строителните дейности
Градът е известен с лечебната си кал, приятния климат и уютната атмосфера. Тук се съчетават спокойствие, природна красота и удобства на градски живот, което го прави идеално място както за постоянно живеене, така и за ваканционен имот или инвестиция.
Този проект предлага не просто жилище, а възможност за комфортен живот до морето и стабилна инвестиция за бъдещето.
Открийте начин на живот с комфорт и удобство, с внимателно проектирани удобства, които отговарят на всичките ви нужди.
Възможност за покупка на паркомясто и гараж
Климатик
Да
Домофонна система
А
Озеленена зона към сградата
В района
В района
Оптична връзка
PVC – четири сезона
Склад
Намерете перфектния дом с нашите атрактивни оферти за недвижими имоти. Специално подбрани, за да отговарят на всички ваши нужди и желания.
Популярни Имоти
Бургас, Бургас, Хоризонт,
Двустаен апартамент 62,95 2 1 1 2027
Бургас, Хоризонт
Двустаен апартамент 63.67 3 1 1 2027
Бургас, Поморие,
Двустаен апартамент 82,41 4 1 1 2027
Бургас, ж.к.Изгрев
Двустаен апартамент 65.01 1 1 1 2026
Бургас, Хоризонт
Тристаен апартамент 103.44 6 2 2 2027
Бургас, ж.к. Меден Рудник
Двустаен апартамент 62.46 5 1 1 2027
Бургас, Сарафово
Тристаен апартамент 90.34 1 2 1 2025
Бургас, Бургас, Меден Рудник, ж.к.Меден Рудник
Двустаен апартамент 63.44 Партер 1 1 2027
Получавайте актуална информация за последните предложения и инвестиционни възможности в сектор на недвижимите имоти.