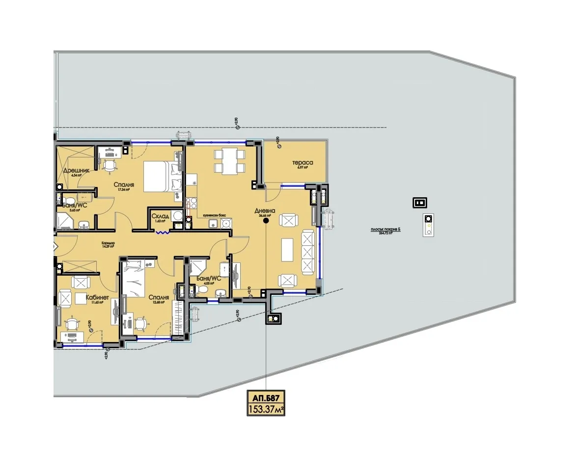
Тортуга 2 Б87 Четиристаен апартамент

Идентификатор на имота: 1168

€229 955

Детайли за имота

 Вид на имота Многостаен апартамент  Площ 418.10
 Етаж 8  Степен на завършеност В строеж
 Брой спални 2  Брой бани 2
 Година на започване 2025  Година на завършване 2027

За имота

Представяме ви нашия нов луксозен проект – жилищна сграда TORTUGA, съчетаващ стил, комфорт и сигурност на едно място.

Разположена в бързоразвиващия се квартал Хоризонт, сградата предлага лесен достъп до магистрала София, търговски център Grand Plaza Mall и бъдещия Студентски кампус, строежът на който вече е започнал.

Проектът е вдъхновен от символиката на костенурката – стабилност, хармония и вечност. Както костенурката носи дома си със себе си, така и SKARABEY TORTUGA предлага комфорт, безопасност и стил в модерна, елегантна архитектура. Специалната арт-инсталация във формат на костенурка прави сградата уникална и разпознаваема, а съчетанието на иновативни технологии с висококачествени материали гарантира комфорт и устойчивост на поколението.

Основни характеристики на сградата:

Два отделни входа с контролиран достъп и по два асансьора във всеки вход

Функционално разпределение на апартаментите – двустайни, тристайни и четиристайни

Търговски площи и гаражи на партера, открити паркоместа и подземни гаражи

Озеленено пространство и детски кът за отдих и спокойствие на живущите

Съвременно строителство с висок клас материали и енергийна ефективност

Модерна и впечатляваща визия, която съчетава естетика и функционалност

Строителството ще започне септември 2025 г. и се очаква да приключи в рамките на 30 месеца.


Този проект предлага не просто апартамент, а комплексен начин за живот – сигурен, спокоен и удобен. Ние предлагаме конкурентни цени и гъвкави финансови условия, за да направим процес на закупуване на лесен, бърз и безпроблемен.

 

Изключителни удобства за съвременен живот
Удобства

Открийте начин на живот с комфорт и удобство, с внимателно проектирани удобства, които отговарят на всичките ви нужди.

Паркиране

Възможност за покупка на паркомясто и гараж

Климатизация

Климатик

Асансьор

Да

Контрол на достъпа

Домофонна система

Енергиен клас

А

Гледка

Град

Зелена зона

Собствен двор

Детска площадка

В комплекса

Фитнес

Открит фитнес в комплекса

Интернет свързаност

Оптична връзка

Дограма

PVC – четири сезона

Помощни помещения

Склад

Структура на имота

Намерете перфектния дом с нашите атрактивни оферти за недвижими имоти. Специално подбрани, за да отговарят на всички ваши нужди и желания.

Удобства на района

Намерете перфектния дом с нашите атрактивни оферти за недвижими имоти. Специално подбрани, за да отговарят на всички ваши нужди и желания.

Популярни Имоти

Избрани

Абонирай се!

Получавайте актуална информация за последните предложения и инвестиционни възможности в сектор на недвижимите имоти.

Абонирайте се